Bloc-Porte de distribution réemploi de COMEC Industrie

Produit vérifié
En savoir plus sur COMEC Industrie

Description


Cette porte de distribution en réemploi, fabriquée au sein des ateliers Comec vous aidera à atteindre les performances et labels environnementaux grâce à un taux de réemploi de 80%.
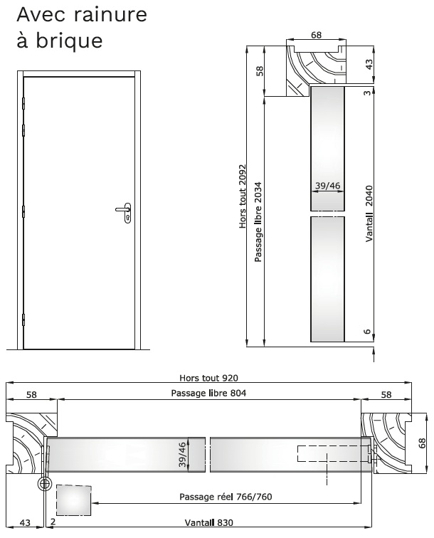
Le réemploi d’anciennes portes est encore une fois invisible et garantit un aspect neuf. Cette porte de 39 à 46 mm d’épaisseur avec âme pleine possède une finition avec stratifié au choix et peut s’adapter sur 3 types d’huisseries
bois, résineux ou bois dur, et peut également s’adapter à des huisseries métalliques pour vos rénovations. Nous pouvons également fabriquer ce bloc porte avec joint ISO et joints balais pour une meilleure acoustique*.
*porte sans performance feu et acoustique

Spécificités
Ame pleine de réemploi
Huisserie neuve : essence et profil d’huisserie sur demande
Paumelles : neuves
Parement de réemploi et décor neuf (finition en stratifié au choix)
Chants de porte neufs

Cas d'usage
Bloc-porte spécialement adapté pour un usage en porte de distribution (sans performance de résistance au feu, sans performance acoustique).

Caractéristiques techniques


Largeur de 730 à 1030mm
Garantie en année 2ans
Matériau(x) taux de réemploi de 60 %mini, encadrement bois neuf (hêtre), stratifié 2 faces

Autres caractéristiques


Contient du biosourcé Oui
Contient du recyclé Oui
Date de fin de validité 2029-12-31
Durée de vie de référence 25
Couleur du produit Blanc , Jaune , Orange , Terracotta , Rouge , Bordeaux , Rose , Violet , Bleu , Vert , Brun , Argent , Bronze , Or , Noir , Gris
Matière du produit Bois et dérivés
Type de bâtiment Habitat collectif , Habitat individuel , Hôtellerie Restauration , Santé , Tertiaire , Commerce , Industrie , Écoles , Bâtiments publics , Sport - Stades , Gare - Aeroports , Spectacles - Musées

Le produit Bloc-Porte de distribution réemploi du fabricant COMEC Industrie classé dans la catégorie Menuiserie intérieure > Portes intérieures - trappes de visites > Portes intérieures battantes est référencé dans la Matériauthèque digitale Materiaux.archi.

Le produit Bloc-Porte de distribution réemploi de COMEC Industrie existe dans les coloris : Blanc Jaune Orange Terracotta Rouge Bordeaux Rose Violet Bleu Vert Brun Argent Bronze Or Noir Gris .

Le produit Bloc-Porte de distribution réemploi de COMEC Industrie est composé de : Bois et dérivés .

Le produit Bloc-Porte de distribution réemploi de COMEC Industrie est prescrit dans des projets de type : Habitat collectif Habitat individuel Hôtellerie Restauration Santé Tertiaire Commerce Industrie Écoles Bâtiments publics Sport - Stades Gare - Aeroports Spectacles - Musées .

Le produit Bloc-Porte de distribution réemploi du fabicant COMEC Industrie a une largeur de de 730 à 1030 mm, Le produit est garanti "2 ans"