XTERNA - Porte coulissante en applique de SCRIGNO
Description
La porte coulissante extérieure Xterna de Scrigno allie robustesse et légèreté, guidant la lumière et le son entre les pièces sans nécessiter de travaux structurels. Elle sépare les pièces sans épaisseur importante et est facile à installer. Robuste et polyvalente, elle s'adapte aux différents styles d'ameublement et devient un élément esthétique et fonctionnel.
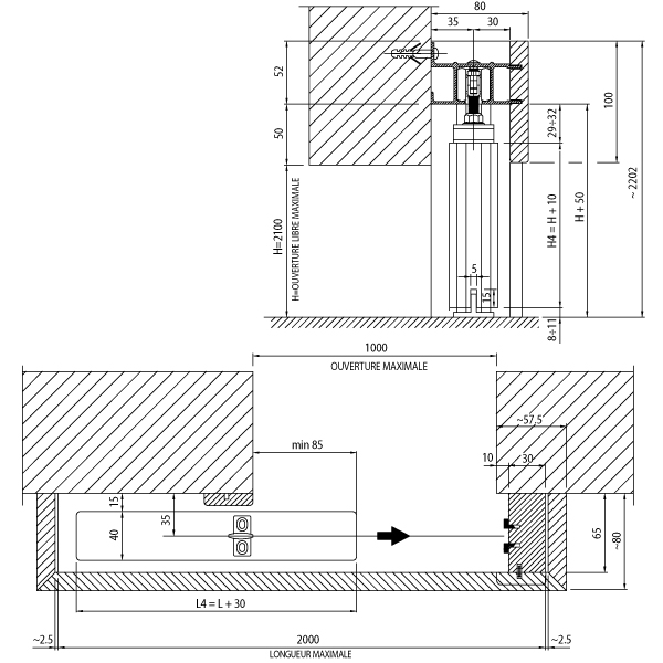
Xterna est la porte coulissante extérieure stratifiée de Scrigno. La porte coulisse le long du mur grâce à l'installation d'un rail appliqué sur la partie supérieure de l'espace d'ouverture : il n'est donc pas nécessaire d'intervenir sur la maçonnerie en insérant un galandage. Le passage est possible en largeur jusqu'à 1000 mm et en hauteur jusqu'à 2100 mm. Le système comprend un kit de quincaillerie, un kit d'habillage et une butée et un frein pour la fermeture lente de l'ouvrant. Le système coulissant permet également l'installation d'une porte en verre pesant jusqu'à 120 kg et d'une épaisseur de 8 à 10 mm. Détails techniques Le kit de quincaillerie se compose d'un rail de guidage, de deux chariots, de butées d'arrêt, de bouchons à insérer à l'extrémité du rail de guidage, d'étriers de suspension à fixer au panneau de la porte, d'un nez de guidage au sol, de vis et de chevilles. Le kit pour le panneau de porte comprend le panneau, le montant, les galandage et les joints d'étanchéité. Xterna est équipée du système de fermeture lente Xterna soft 30. Accessoires Il est possible d'accessoiriser le produit avec le kit Chiudiscrigno, la poignée pour portes coulissantes disponible en deux modèles : Rotonda et Quadra. Les deux modèles sont disponibles avec serrure, sans serrure, avec serrure à clé pliante et avec trou de cylindre européen. Le modèle Rotonda est disponible dans les finitions suivantes : or poli, or satiné, chrome poli et chrome satiné. La version Quadra est disponible en chrome poli, chrome satiné, blanc et noir.
Caractéristiques techniques
| Largeur | 2000mm pour la version standard / 3000mm pour la version XLm | |
|---|---|---|
| Hauteur | 2030mmm | |
| Poids | 120kg poids max vantailkg | |
| Matériau(x) | aluminium anodisé et mdf |
Autres caractéristiques
| Couleur du produit | Blanc |
|---|---|
| Matière du produit | Aluminium |
| Type de bâtiment | Habitat individuel |
Le produit XTERNA - Porte coulissante en applique du fabricant SCRIGNO classé dans la catégorie Menuiserie intérieure > Portes intérieures - trappes de visites > Portes intérieures coulissantes (applique) est référencé dans la Matériauthèque digitale Materiaux.archi.
Le produit XTERNA - Porte coulissante en applique de SCRIGNO existe dans les coloris : Blanc .
Le produit XTERNA - Porte coulissante en applique de SCRIGNO est composé de : Aluminium .
Le produit XTERNA - Porte coulissante en applique de SCRIGNO est prescrit dans des projets de type : Habitat individuel .
Le produit XTERNA - Porte coulissante en applique du fabicant SCRIGNO a une largeur de 2000mm pour la version standard / 3000mm pour la version XL m,
Documentations
Aucun document
Fichiers BIM/2D/3D
Aucun fichier
Fichiers textures
Aucun fichier